消防設備士甲4類に合格!電気工事士2種持ちの勉強方法・製図対策・免状申請まで全部まとめ

消防設備士甲4類に2回目にして合格できました。
これから受験する方の参考になればと思います。


電気工事士2種持ちで受験しました

私は第二種電気工事士を取得済みの状態で受験しました。
消防設備士甲種4類の受験には、電気工事士(1・2種)、電気主任技術者
または一定の学歴(機械・電気・建築等の指定学科卒業)や
実務経験(乙種取得後2年以上など)
が必要です。
誰でも受けられる乙種とは違う為、電気工事士2種を取得し
今回の消防設備士甲4類の資格取得に
向けて取り掛かりました。

電工2種を持っていると
・受験資格あり
・一部科目免除あり(下記の①~➂が免除)
 ①基礎的知識(電気)
 ②構造・機能及び工事または整備(電気)
 ➂実技試験の一部(鑑別等の問1)
というメリットがあります。

特に甲4は
・自動火災報知設備
・配線
・電圧
・回路

など電気知識が多いので、電工2種の試験項目免除は私にとってありがたい。
受験資格を得て、また電気項目に免除がある分
他に勉強時間を充てる事が出来るからです。

過去問中心でOKですが
理解が必要で筆記では、ちょっとした文章に引っ掛かりやすいこと
製図では、凡例(シンボル)も理解しておく必要があり
設置ルールを覚えて、ひたすら練習するのみです。


使用したテキスト

公論社 甲4類 上巻・下巻


消防設備士では定番の過去問テキストです。
問題数が多く
試験と同じ形式なのでこれを中心に勉強しました。
購入される際は、年度の新しいバージョンをおススメします。
問題数が前年度に比べて、多いからです。

私は、1回目受験の時に、メルカリで安さに惹かれ
問題数がコピーされた小冊子的な物を購入しましたが
まったくダメでした。
過去問を解いて、ダメだった場合
ちゃんと解説していて自分が理解しやすいテキストが大事です。

[商品価格に関しましては、リンクが作成された時点と現時点で情報が変更されている場合がございます。]

消防設備士第4類令和8年上巻 [ 公論出版 ]
価格:2,750円(税込、送料無料) (2026/3/15時点)


[商品価格に関しましては、リンクが作成された時点と現時点で情報が変更されている場合がございます。]

消防設備士第4類令和8年下巻 [ 公論出版 ]
価格:2,750円(税込、送料無料) (2026/3/15時点)




製図の勉強方法


甲4で一番難しいのは製図です。
私は次の方法で勉強しました。

過去問のパターンを覚える

甲4の製図は

・ベル
・感知器
・発信機
・受信機
・表示灯

など配置パターンがほぼ決まっていて
㎡、高さ、はり、数、終端抵抗、配線の2本、4本など
見て、考えてテキスト本の製図問題を繰り返しやるだけで対応できます。


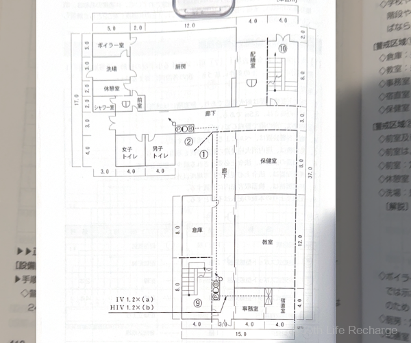
※引用:公論社 消防設備士甲4類令和7年度版・下巻より
受験時、この製図そのままが出題されました。

クリップを使って、本を見開き状態で固定にして
問題の部分をスマホのアプリ(プレビュー)でスクショします。
スクショした写真を転送し、プリンターで印刷。
これで、試験の様にフリーハンドでの練習ができます。
書き方を覚えるのがコツになります。

また、厚みがあるテキスト本を止めるのに役に立った『ウカンムリクリップ』
色付きがかわいいけど、プリントアウトを考えると透明が良いです。


消防設備士はどこの県でも受験できる

消防設備士試験は

居住地に関係なく
どこの都道府県でも受験できます。

・神奈川在住 → 東京受験OK
・東京在住 → 千葉受験OK
・地方在住 → 都市部受験OK

日程が合わない場合は他県受験がおすすめです。


合格発表を待たず、すぐ再申込みできる

消防設備士試験は合否発表前でも次回申込み可能です。

自己採点でダメそうなら
すぐ次を申し込めます。

私は、製図の2問中、製図も自信なし、系統図の数も
『間違える・・・』と分かった為
自宅に帰って、すぐ受験できる県を探し申し込みました。
悲しきかな、人は時間が建つと忘れてしまいます。
今、一番頭に入ってる内に、また同じ間違いを避けられる
事が出来ると言った点から、すぐ次回を申し込んだ方が得策
です。

※ただし合格していた場合でも返金なしなので注意してください。





合格発表までの期間

試験から発表まで約3週間〜1か月でした。
試験会場で発表された合格発表の日と実際違うことも。
ホームページ上で、〇月〇日発表と表示されるので
ご確認くだいね。


・WEB発表(正午発表)
・郵送通知

があります。
製図は採点部分が公表されていない為
モヤモヤ感があって、この合否までの発表がなんとも
言えずなんです。
電話での問い合わせには一切応じてもらえません。


合格通知書には、%で表記され
自身が何割出来ていたのかが、わかります。
ただ、割合がわかるだけで、どこをどう間違えたのか
どこで減点されるのかは不明のまま。


合格後は免状申請が必要

合格通知書が来たら、期日までに申請が必要となります。
用意するのは下記の通り。

1 合格通知ハガキに記入
2 写真(6か月経過した場合、合格通知書に写真の再提出記載)
3 手数料納付(2900円)
4 簡易書留送付(免状送付用の返信封筒も同様)


手数料の納付(証紙・キャッシュレス)

以前は

・県証紙
・収入証紙でしたが

現在は
・キャッシュレス
・コンビニ
・電子納付

対応の県も増えています。受験した県の案内を確認してください。


東京(中央試験センター)と千葉(千葉経済大学)

1回目は、東京(中央試験センター)で受験。
ここでは、試験当日の下記の物が渡され
合格通知がきたらの手順が封筒に入っていて、とても親切。


2回目の千葉(千葉経済大学)受験では
試験当日は、渡される物はなく
合格通知書の証紙の貼る下に、用意するものが記載。
合格通知書に手数料(県証紙)、簡易書留用460円(返信封筒用)
通知書に申請者名・電話番号を記載の上、送付。
写真については、再提出の記載なし。
これは、受験票の写真が期限内の為ですね。

ホームページ上では、販売所が記載されており
勤務後に、千葉の販売所までの営業時間は間に合わない
午後休暇の申請が必要かな?と思ってましたが
合格発表時に仕事上の出先で千葉にいた為
県の証紙を購入することが出来ました。

合格通知書を見ると、現金書留で一式送付も可能みたいですね。
県外在住者で、これは千葉に再度出向いて購入する手間が省けて良いですね。


まとめ

消防設備士甲4類は

・過去問中心でOK
・製図が重要
・電工2種持ちだと有利
・免状申請を忘れない

これから受験する方の参考になれば嬉しいです。

コメントを残す

メールアドレスが公開されることはありません。 が付いている欄は必須項目です